Địa điểm: TP. Phan Rang, Tỉnh Ninh Thuận
Diện tích khuôn viên: 180 m2
Diện tích xây dựng: 180 m2
Tổng diện tích xây dựng: 1280 m2
Thiết kế và xây dựng: 2021
Nằm giữa trung tâm đô thị sôi động, căn nhà phố tại Phan Rang này không chỉ là nơi an cư lý tưởng mà còn là biểu tượng của sự hòa quyện hoàn hảo giữa không gian sống riêng tư và hoạt động kinh doanh đẳng cấp. Với quy mô 1 trệt, 4 lầu và sân thượng rộng rãi, thiết kế tinh tế tạo nên một tổ hợp đa năng, linh hoạt phù hợp với nhịp sống hiện đại.
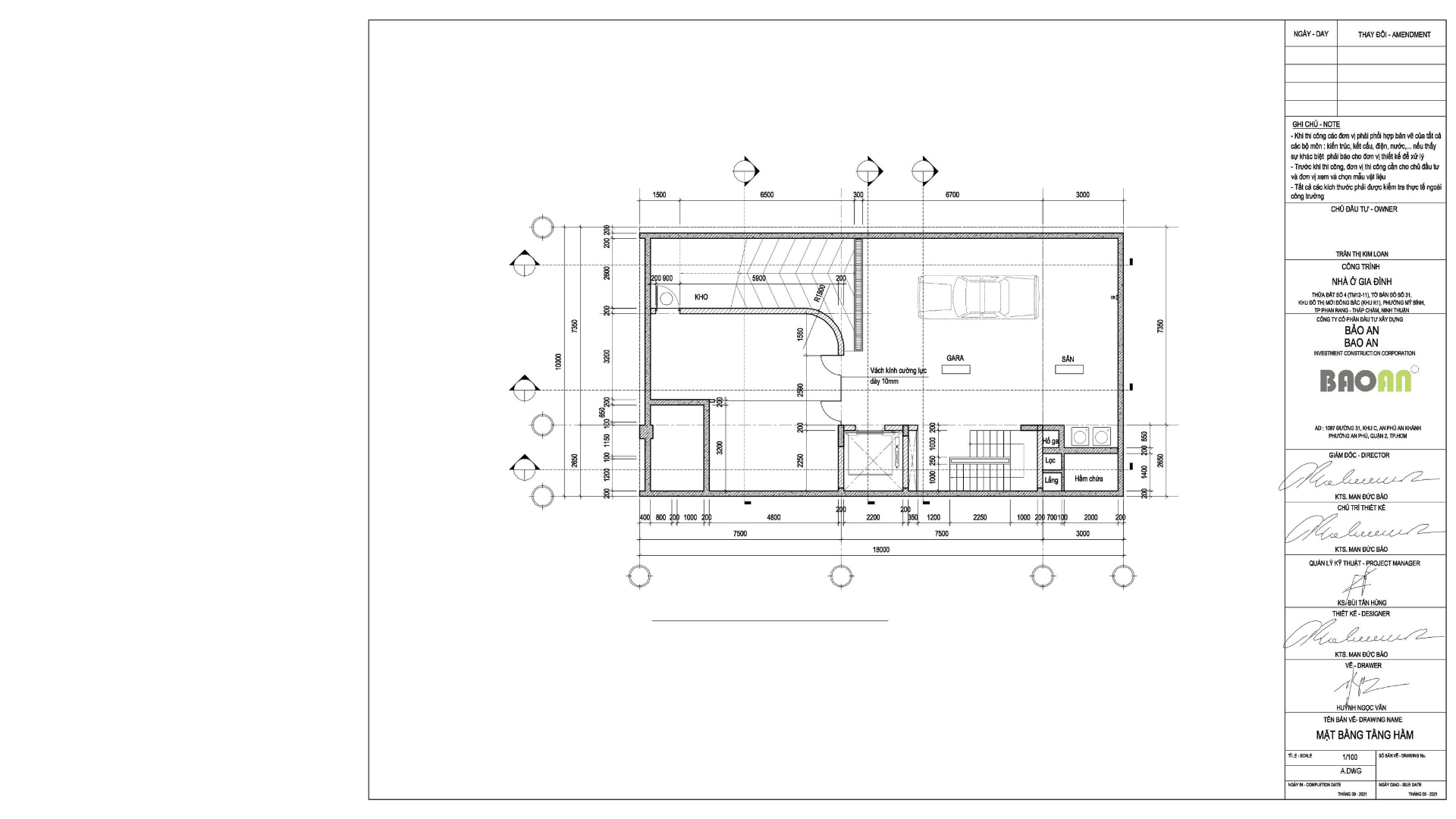
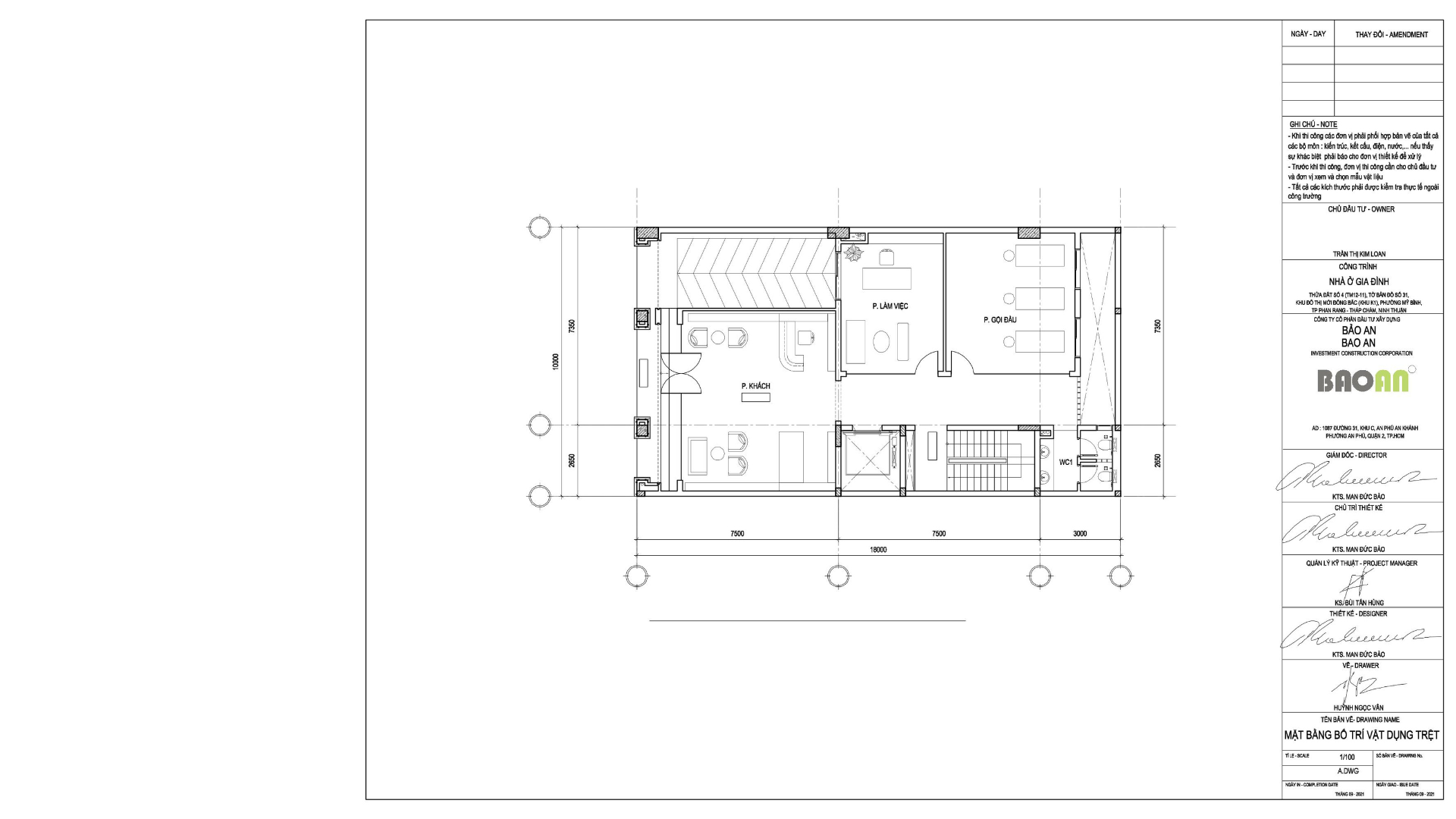
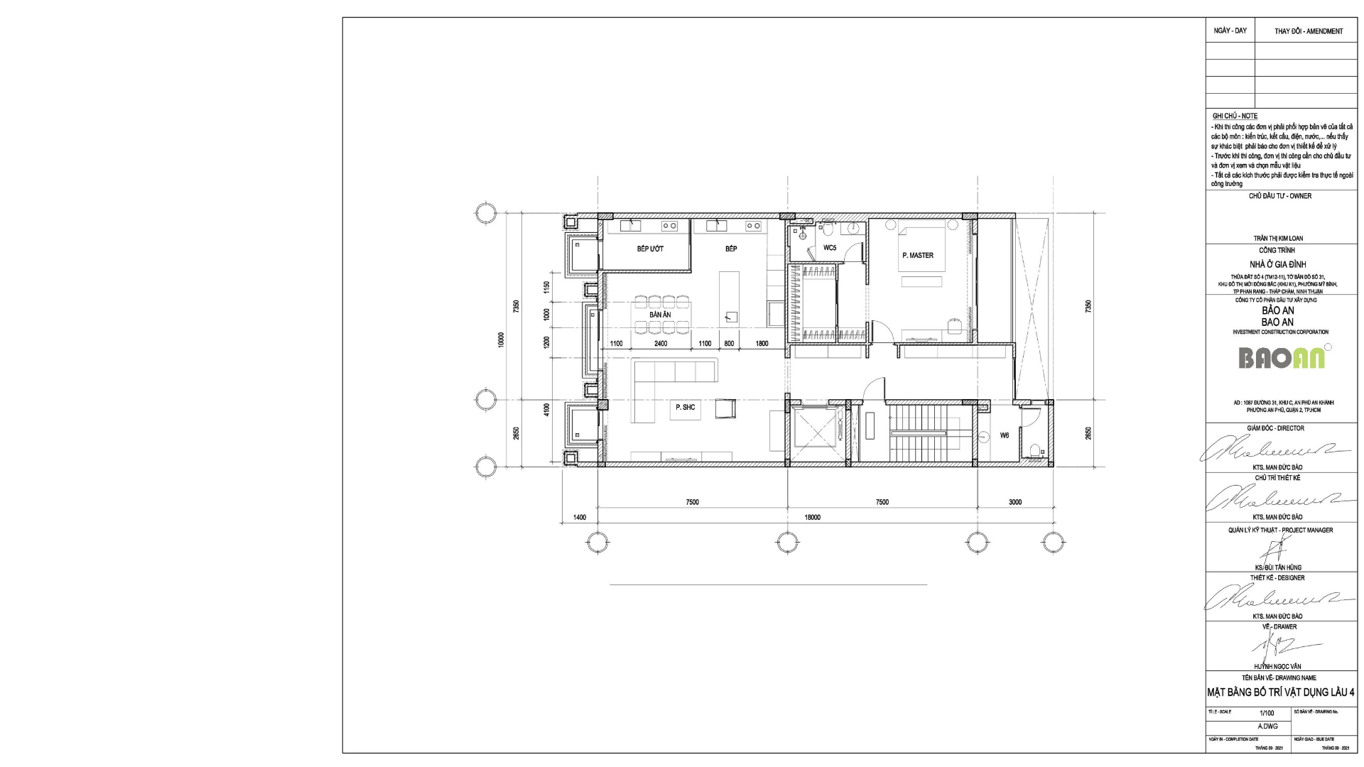
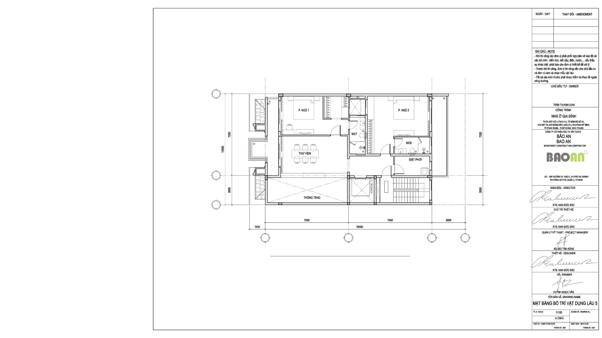
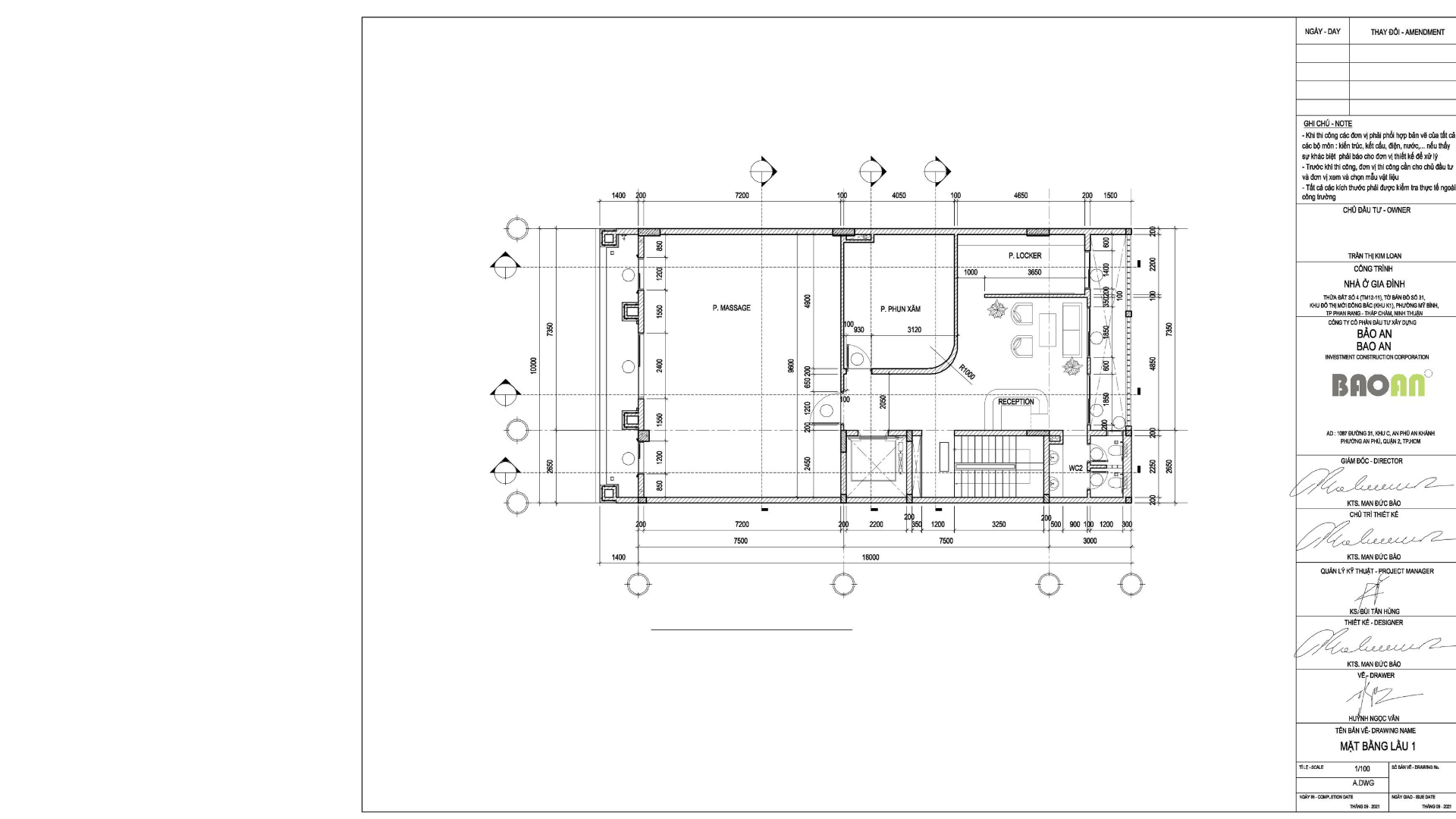
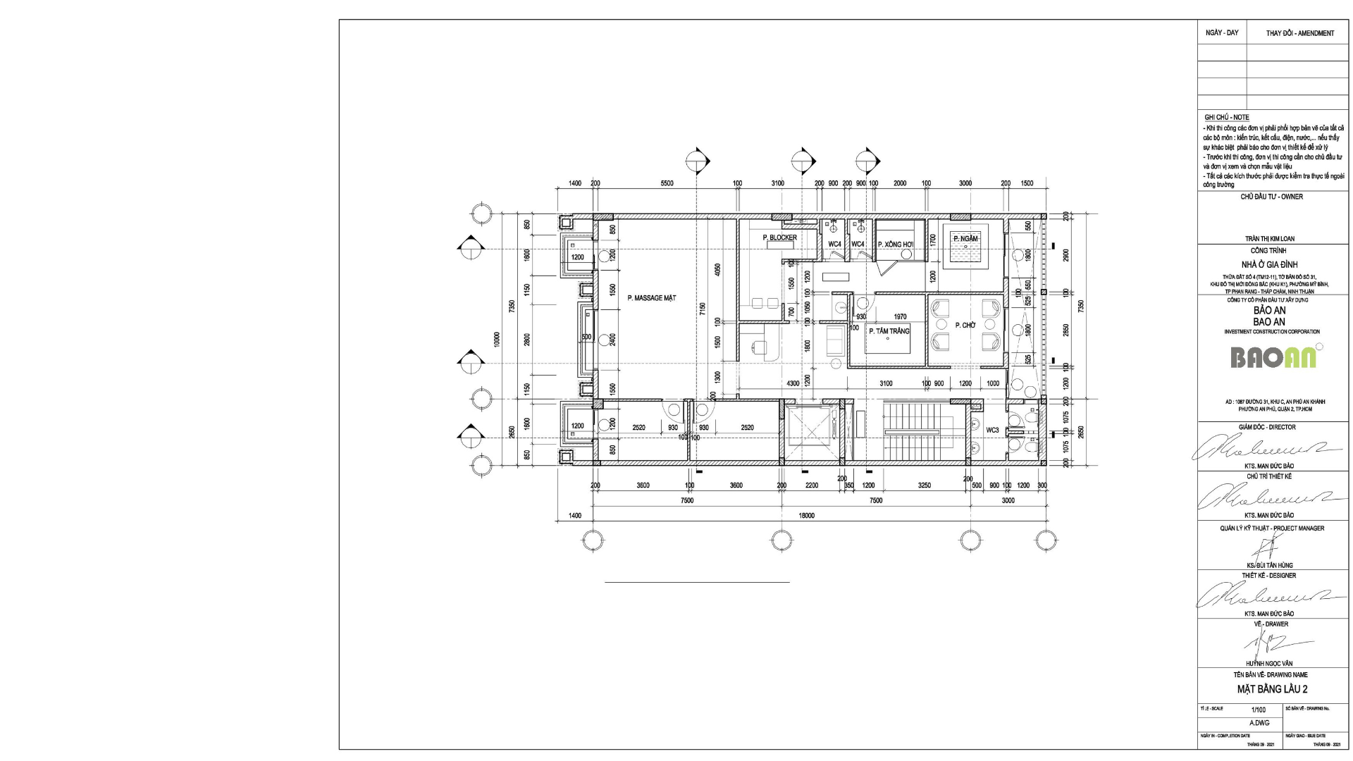
Tầng trệt được bố trí khéo léo để vận hành không gian spa cao cấp theo phong cách tối giản, giao hoà với thiên nhiên, mang đến trải nghiệm nghỉ dưỡng đích thực. Các tầng trên là không gian sinh hoạt của gia đình, được chăm chút trong từng chi tiết, từ nội thất sang trọng, vật liệu tự nhiên như đá và gỗ cao cấp, đến ánh sáng tự nhiên tràn ngập khắp nơi, tạo cảm giác ấm cúng, tinh tế và đầy cảm hứng.
Sân thượng xanh mát trên cao như một ốc đảo giữa lòng thành phố, mở ra tầm nhìn rộng lớn và mang đến cảm giác thư thái, kết nối thiên nhiên giữa những nhộn nhịp của phố thị. Đây không chỉ là một không gian sống mà còn là mô hình kết hợp kinh doanh đỉnh cao, giúp gia chủ vừa phát triển thương hiệu cá nhân, vừa tận hưởng cuộc sống chất lượng ngay trong chính tổ ấm của mình.
Phối Cảnh Mặt Bằng



Phối Cảnh Ngoại Thất


Phối Cảnh Nội Thất



