Địa điểm: Khu công nghiệp Sông Hậu, Huyện Châu Thành, Tỉnh Hậu Giang
Diện tích khuôn viên: 1600 m2
Diện tích xây dựng: 900 m2
Tổng diện tích xây dựng: 3000 m2
Thiết kế và xây dựng: 2019
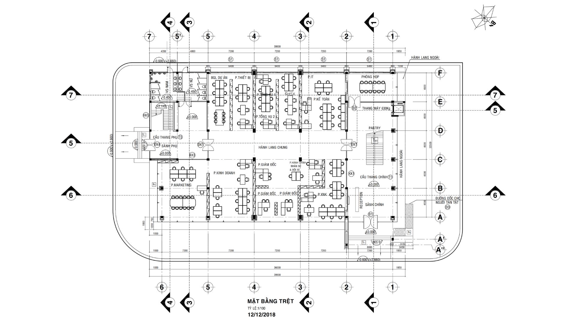
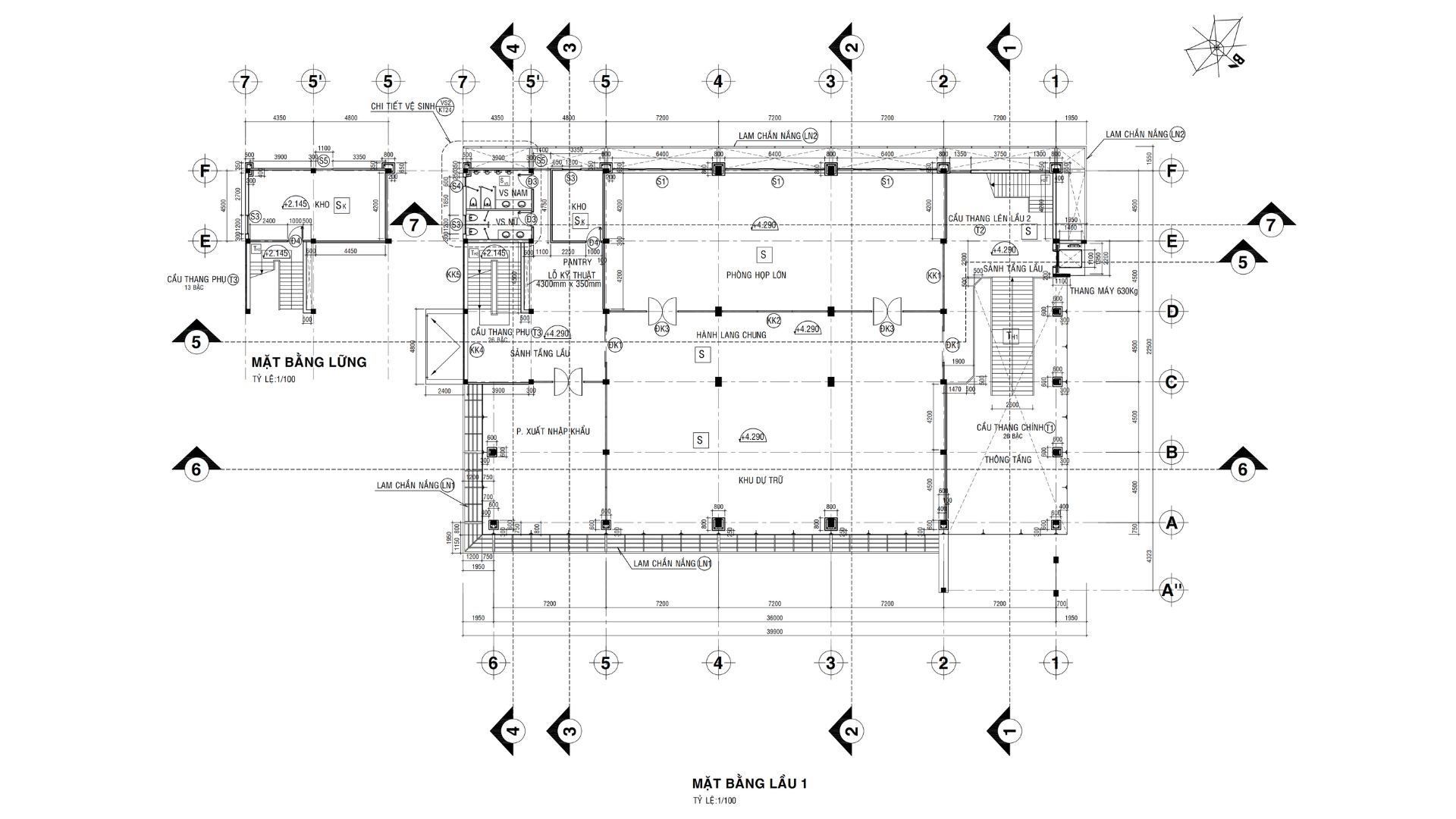
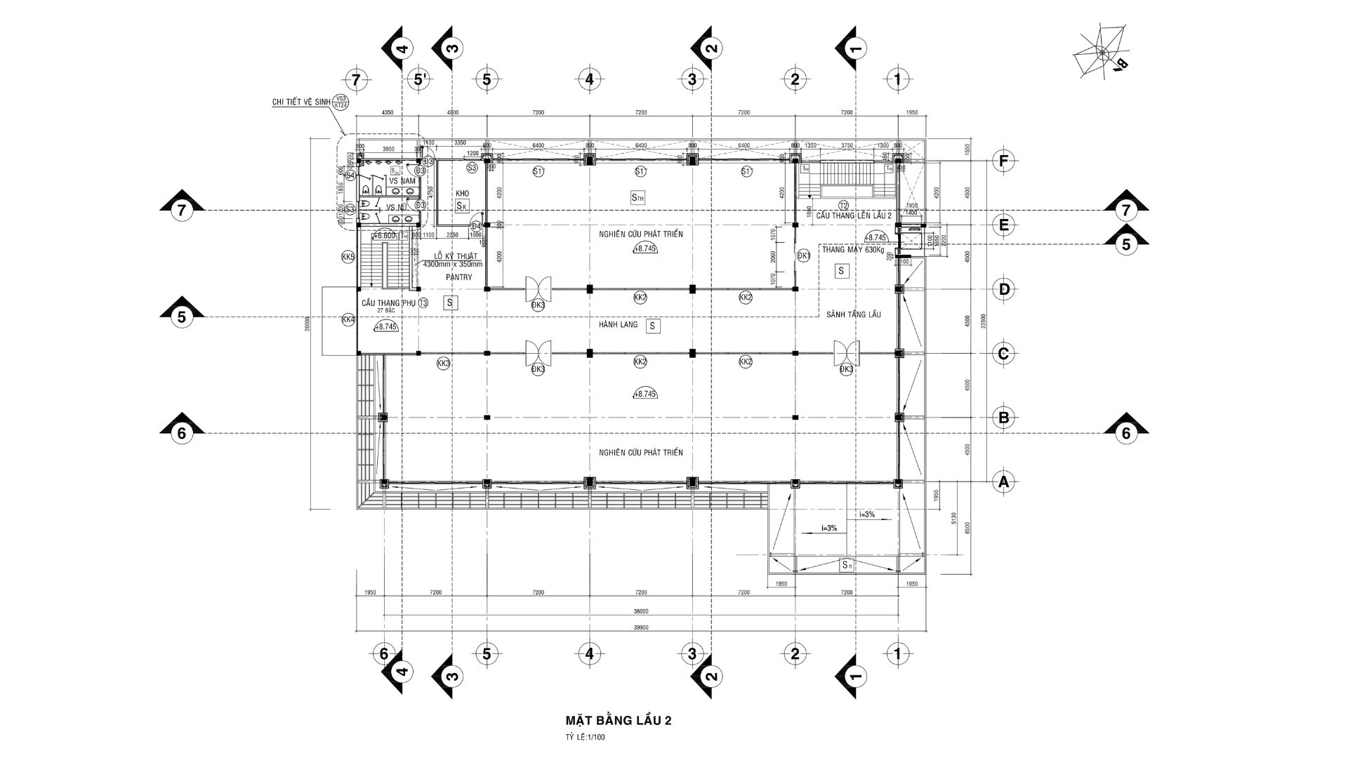
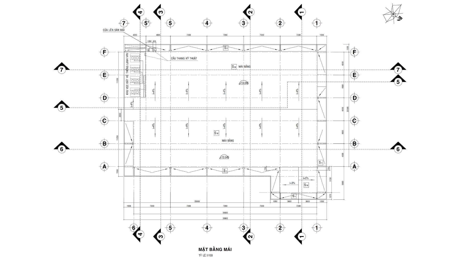
Công trình văn phòng Vemedim do BaoArch Design & Construction thiết kế và thi công là biểu tượng của kiến trúc văn phòng hiện đại tại Việt Nam. Tòa nhà nổi bật với mặt kính cao cấp, không gian mở đón ánh sáng tự nhiên, kết hợp hài hòa cùng chất liệu gỗ ấm áp, tạo nên môi trường làm việc chuyên nghiệp và gần gũi với thiên nhiên. Nội thất bên trong được bố trí khoa học: sảnh chính rộng lớn, khu vực văn phòng mở hiện đại, phòng họp tiện nghi, khu đào tạo – hội thảo đa chức năng, cùng không gian tiếp khách sang trọng. Sự kết hợp giữa thẩm mỹ, công năng và giải pháp thiết kế xanh đã giúp công trình văn phòng Vemedim trở thành điểm nhấn kiến trúc nổi bật, khẳng định uy tín thương hiệu và định hướng phát triển bền vững của doanh nghiệp.






