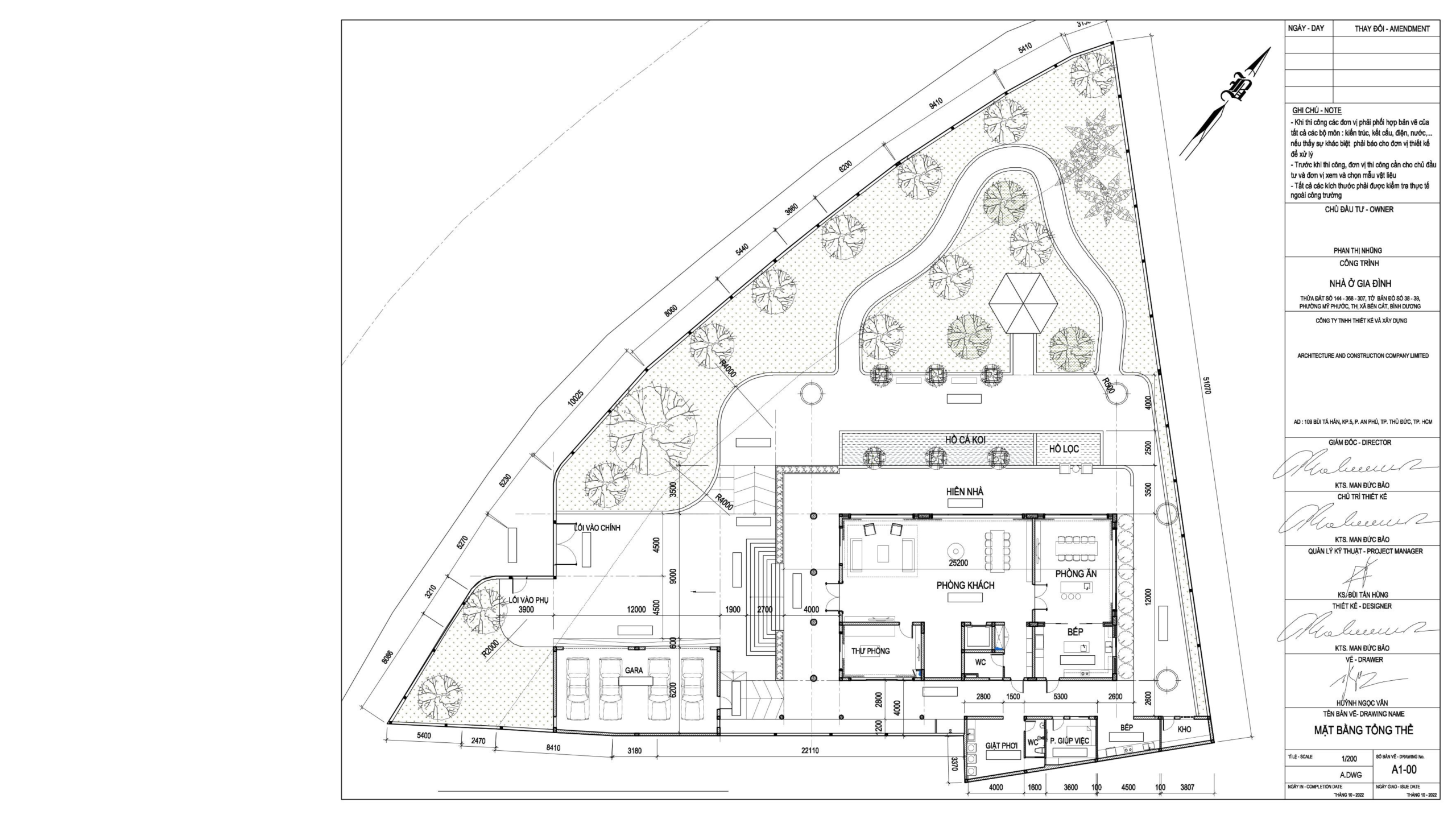
Địa điểm: Bến Cát, Tỉnh Bình Dương
Diện tích khuôn viên: 1800 m2
Diện tích xây dựng: 400 m2
Tổng diện tích xây dựng: 1600 m2
Thiết kế và xây dựng: 2022
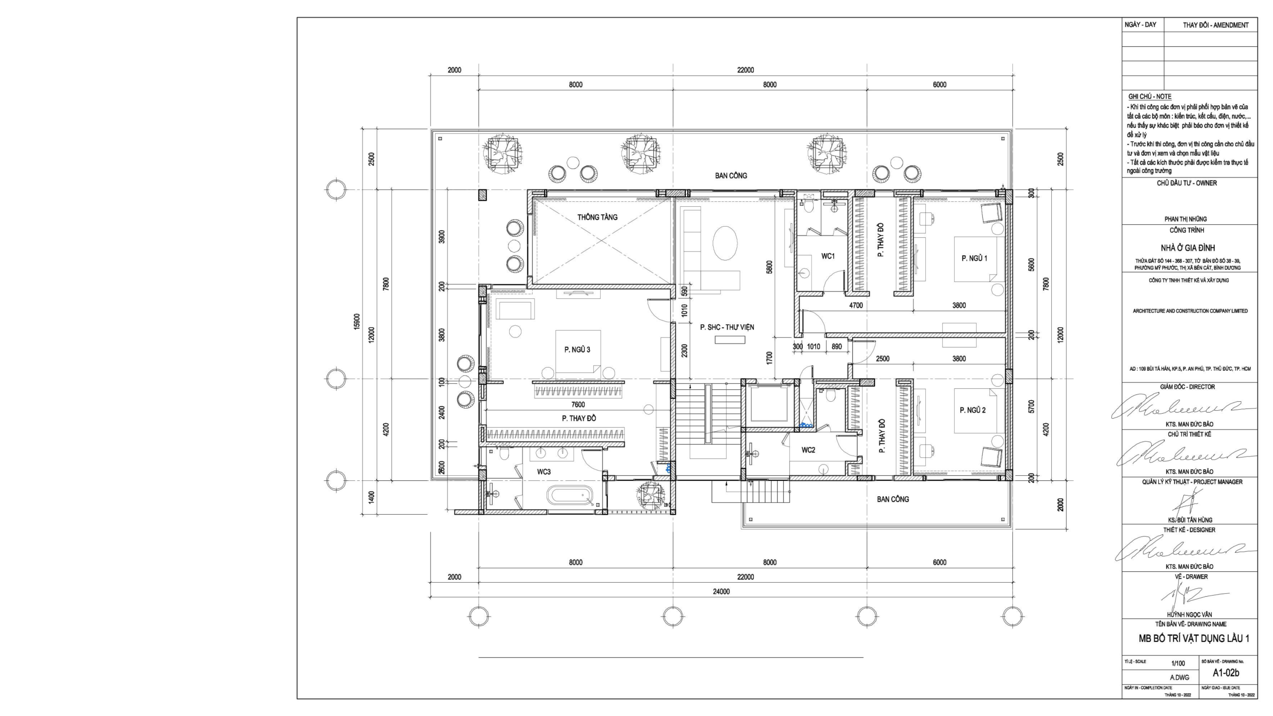
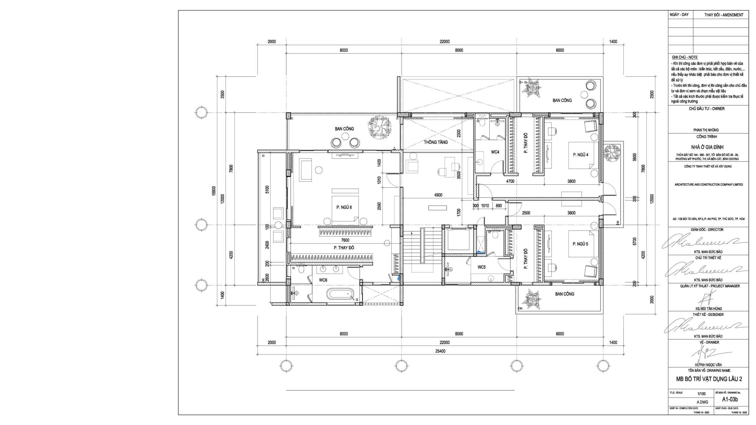
Là sự kết hợp hoàn hảo giữa kiến trúc đương đại và không gian xanh, căn biệt thự 1 trệt 3 lầu nổi bật với thiết kế mở, đa tầng chức năng và tinh thần sống tinh tế. Mỗi tầng được bố trí hợp lý nhằm tối ưu hóa công năng, đồng thời giữ được sự riêng tư cho từng khu vực sinh hoạt.
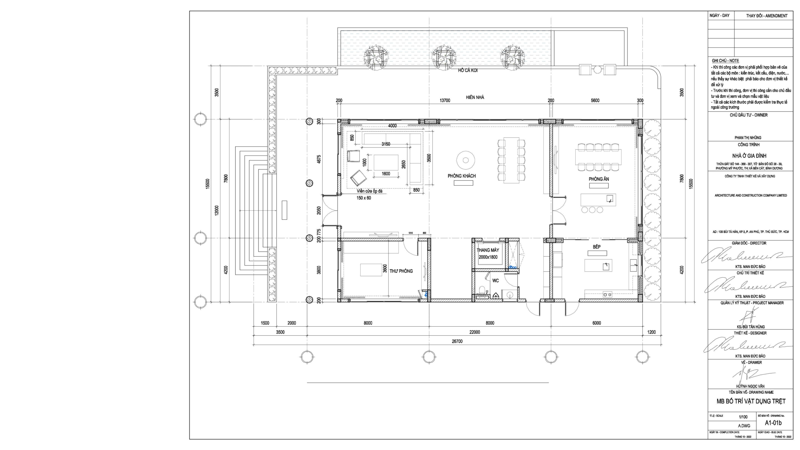
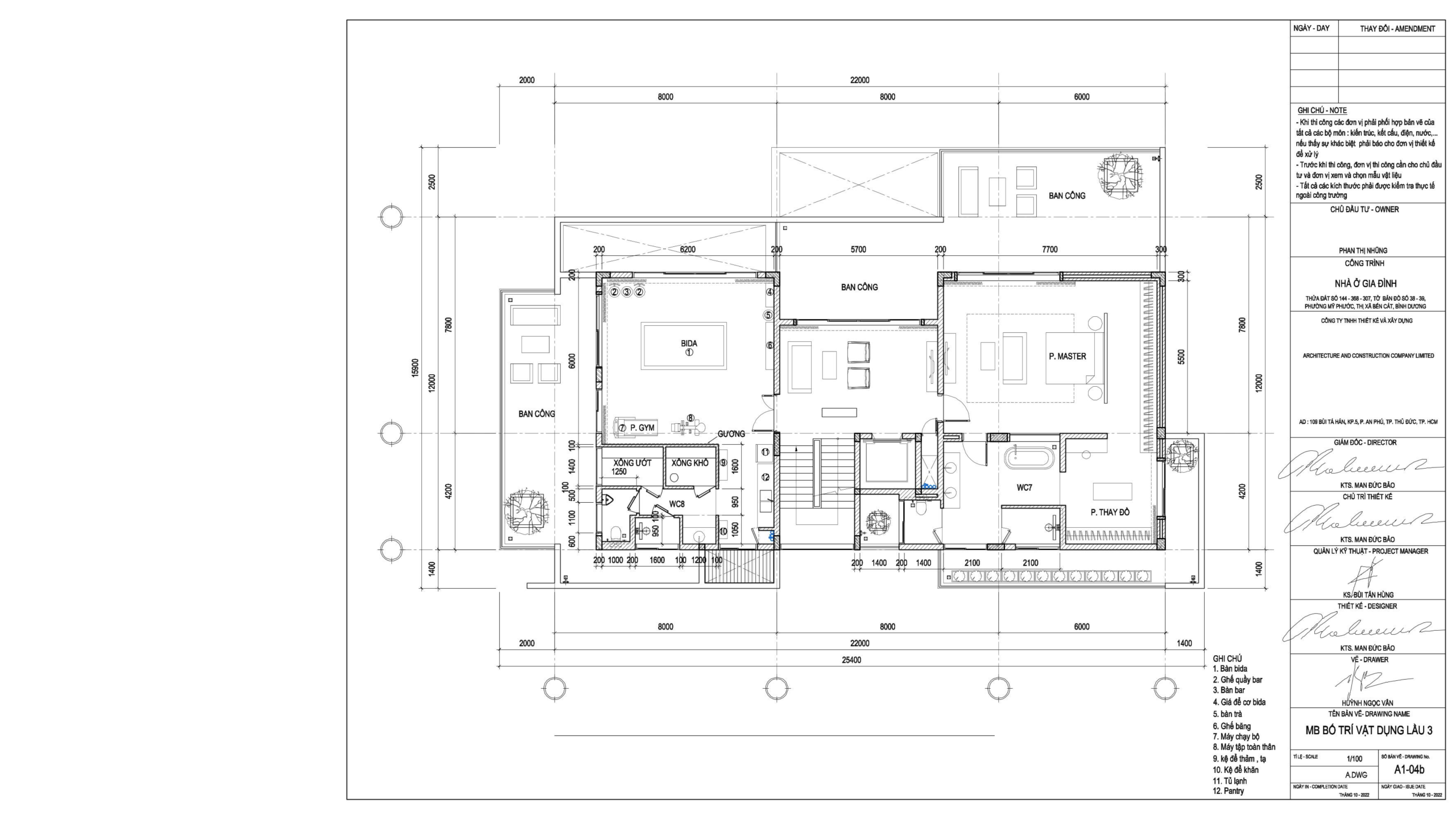
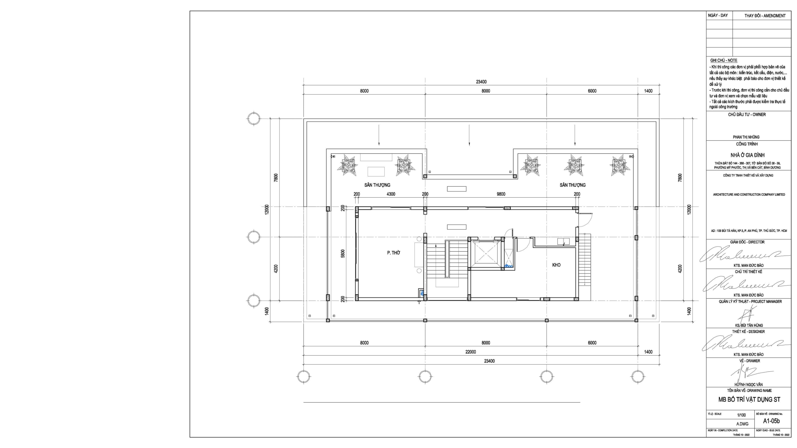
Tầng trệt mở ra không gian tiếp khách và hồ cá thư giãn, mang đến cảm giác đón chào đầy gần gũi. Các tầng lầu trên là nơi bố trí hệ thống phòng ngủ, phòng làm việc, thư viện, phòng giải trí và phòng trẻ em – tất cả đều mang phong cách hiện đại, sử dụng chất liệu cao cấp như gỗ tự nhiên, kính và đá marble.
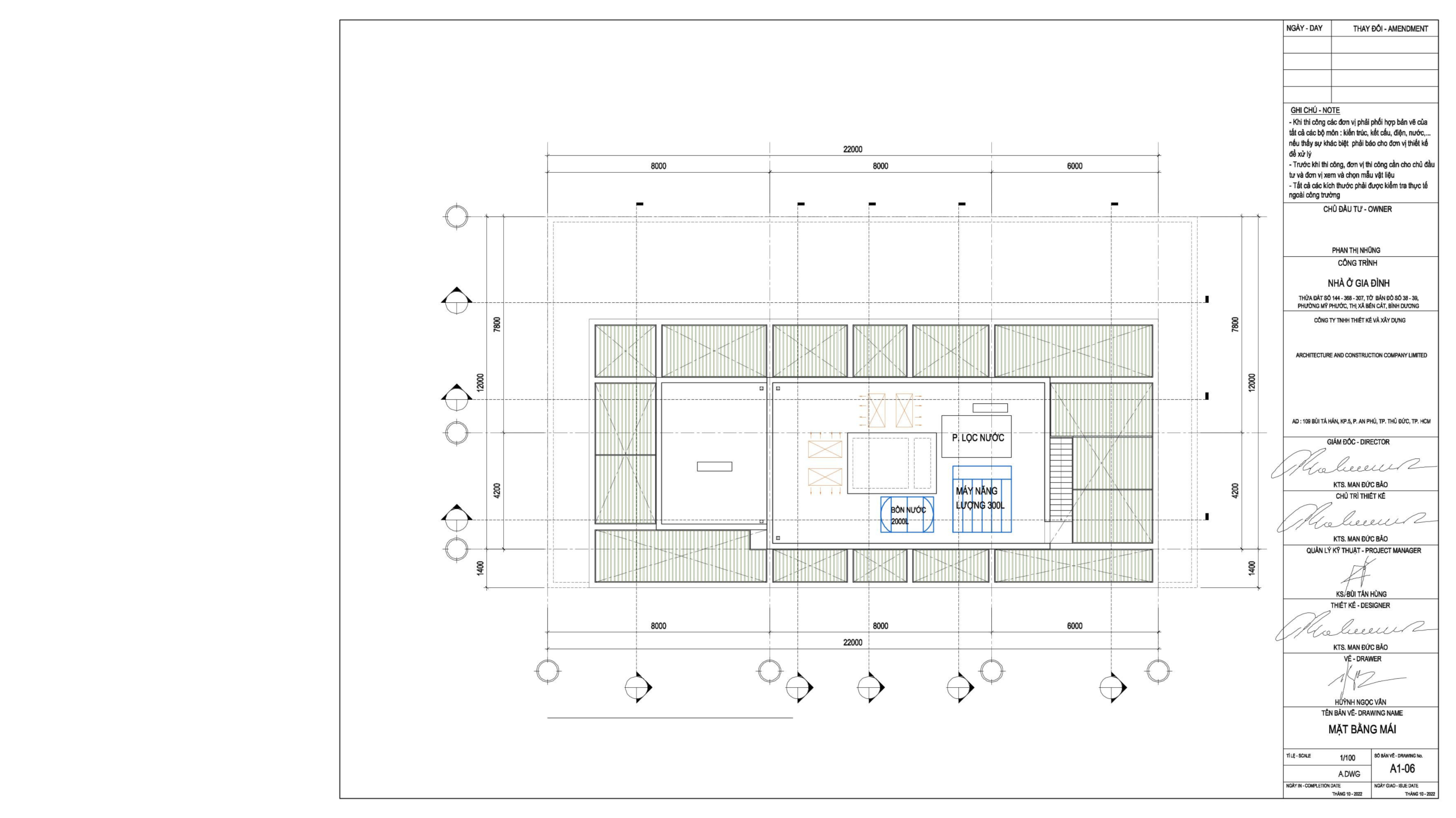
Ban công và sân thượng phủ xanh, đón nắng gió tự nhiên, tạo nên trải nghiệm sống chan hòa giữa thiên nhiên mà vẫn giữ vững đẳng cấp riêng biệt. Không gian nội thất được chăm chút đến từng chi tiết – từ hệ đèn nghệ thuật, bố cục ánh sáng, đến màu sắc vật liệu đều phản ánh đúng tinh thần sống sang trọng và thư thái của gia chủ.
Đây là một trong những dự án biệt thự cao cấp tiêu biểu do Bảo Arch thực hiện, dành cho những chủ nhân đang tìm kiếm một không gian sống đẳng cấp, tinh tế và khác biệt.
Phối Cảnh Mặt Bằng




Phối cảnh 3D Ngoại Thất


Phối Cảnh 3D Nội Thất





