Địa điểm: Thủ Đức, TP. HCM
Diện tích khuôn viên: 300 m2
Diện tích xây dựng: 150 m2
Tổng diện tích xây dựng: 450 m2
Thiết kế và xây dựng: 2019
Căn biệt thự của chị T được thiết kế với phong cách hiện đại làm nền tảng. Do đó, từ kiến trúc đến công năng đều ưu tiên sự tối giản và tiện nghi. Mặt tiền là những hình khối xếp chồng. Kết hợp cùng tone màu trắng – xám-be, làm tăng tính thẩm mỹ và hiện đại của ngôi nhà. Đan xen trong kiến trúc là những khoảng thiên nhiên được thêm vào. Hình thành nên sự hòa quyện đầy tinh tế.
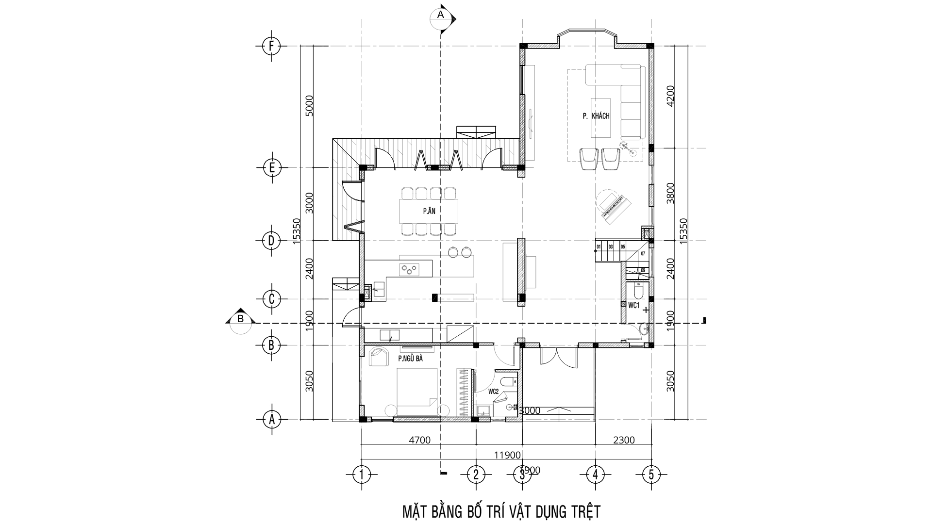
Công trình hướng đến sự tiện nghi để gia chủ có không gian sống và tận hưởng trọn vẹn. Các KTS Bảo Arch đã binh bố mặt bằng biệt thự 3 tầng dựa trên nhu cầu và thói quen sử dụng của cả gia đình. Tầng trệt là khu vực chung như phòng khách, phòng bếp + ăn. Ngoài ra còn có phòng ngủ dành cho người lớn tuổi và WC sử dụng cho khách đến chơi.

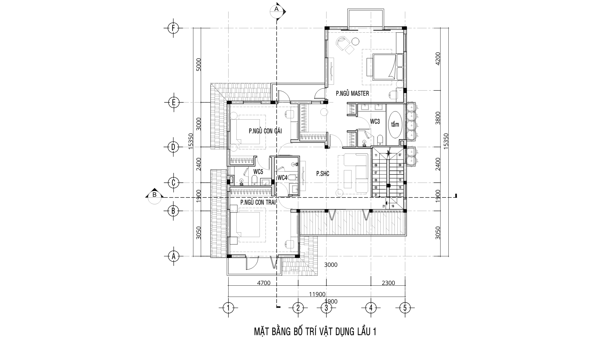
Lầu 1 được thiết kế với 3 phòng ngủ rộng rãi. Mỗi phòng được bố trí một phòng WC riêng. Trong đó, có 1 phòng master có diện tích nổi bật hơn. Để tăng kết nối cho các thành viên, tại tầng 2 được đặt thêm một phòng sinh hoạt chung. Đây sẽ là không gian diễn ra các hoạt động cùng nhau giúp tăng sự gắn kết.

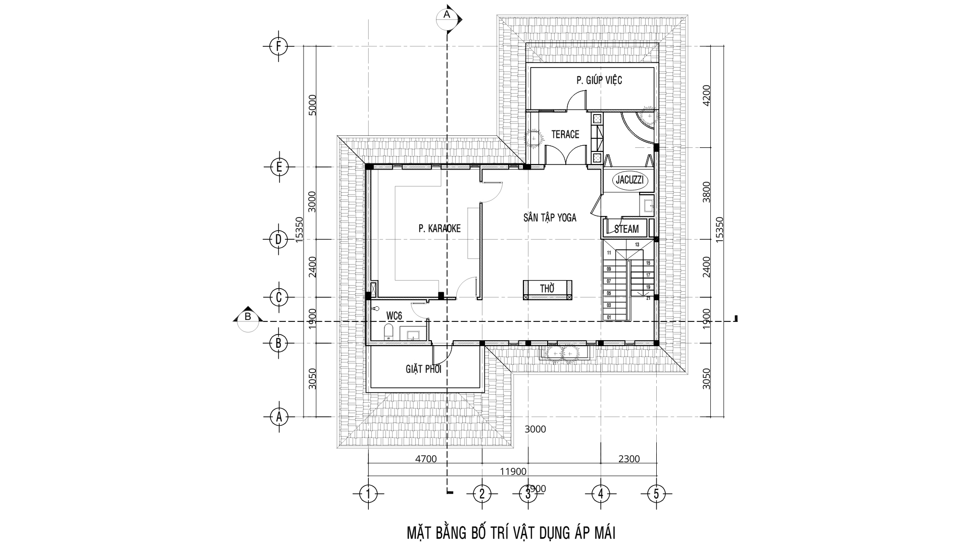
Là 1 người cực kì yêu thích những hoạt động thể chất và yoga, đội ngũ KTS của Bảo Arch thiết kế phần áp mái của công trình được bố trí 1 sân tập yoga riêng, phòng thờ, phòng kho, 01 phòng ngủ, 01 WC, khu vực giặt phơi. Tại đây còn có không gian ngoài trời thoáng mát. Với hệ các cây xanh, tiểu cảnh tươi tốt cùng nguồn gió tự nhiên dồi dào. Đây là nơi lý tưởng để gia chủ thư giãn và tận hưởng sự trong lành, tươi mát từ thiên nhiên.


PHỐI CẢNH NỘI THẤT


