Địa điểm: Quận 5, TP. HCM
Diện tích khuôn viên: 240 m2
Diện tích xây dựng: 240 m2
Tổng diện tích xây dựng: 2100 m2
Thiết kế và xây dựng: 2021
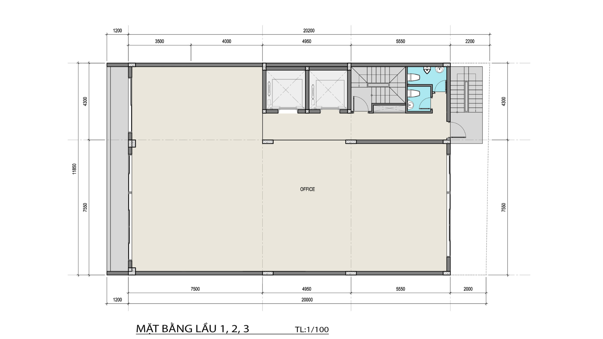
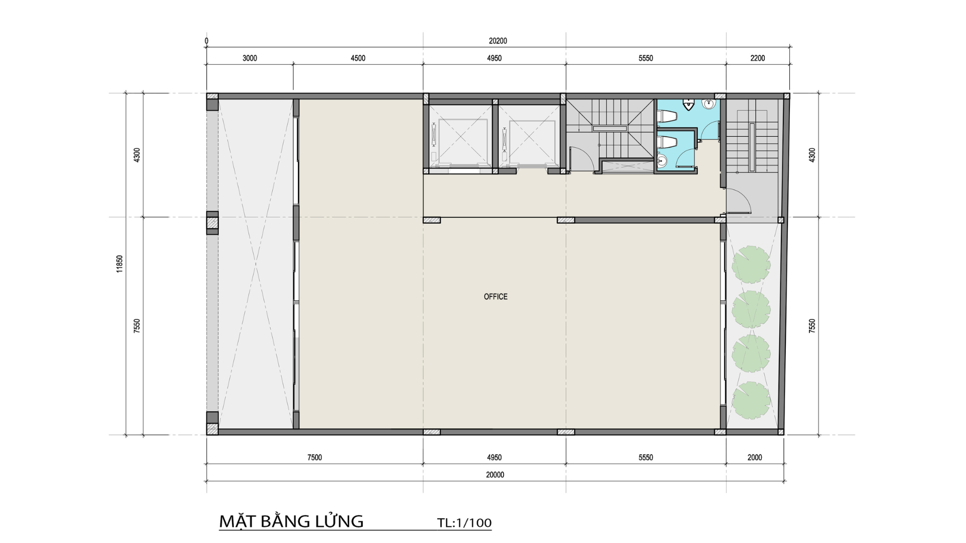
BẢNG VẼ MẶT BẰNG


PHỐI CẢNH NGOẠI THẤT

PHỐI CẢNH NỘI THẤT

Địa điểm: Quận 5, TP. HCM
Diện tích khuôn viên: 240 m2
Diện tích xây dựng: 240 m2
Tổng diện tích xây dựng: 2100 m2
Thiết kế và xây dựng: 2021
BẢNG VẼ MẶT BẰNG


PHỐI CẢNH NGOẠI THẤT

PHỐI CẢNH NỘI THẤT
