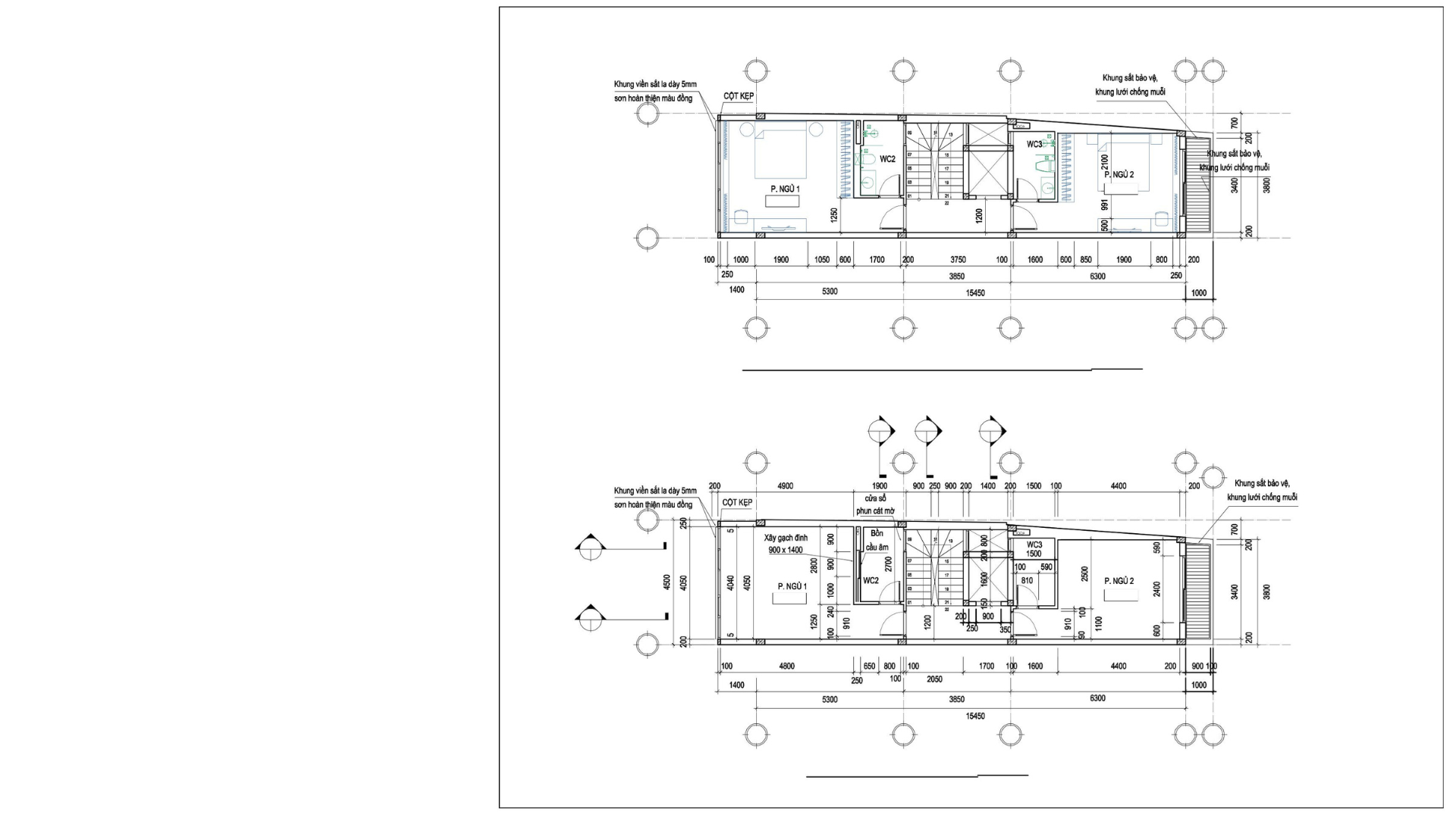
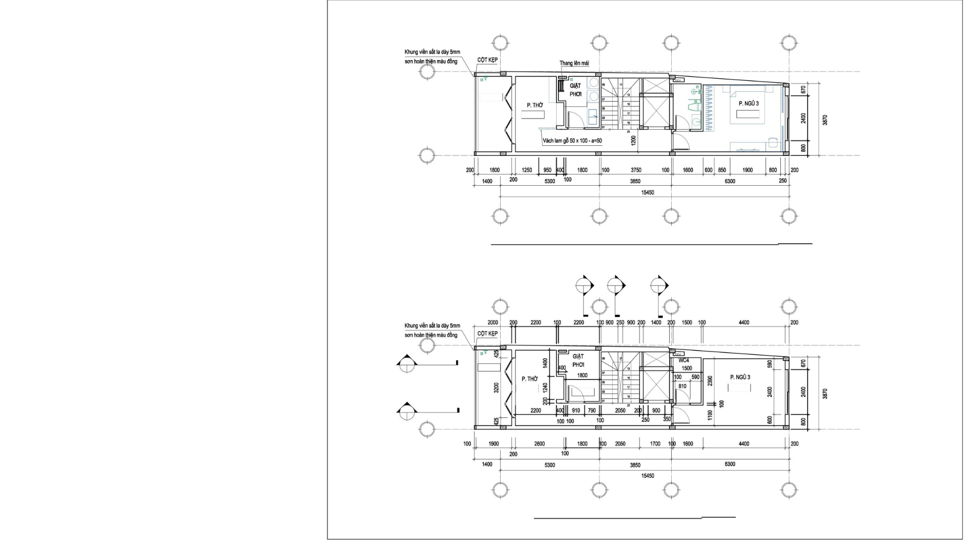
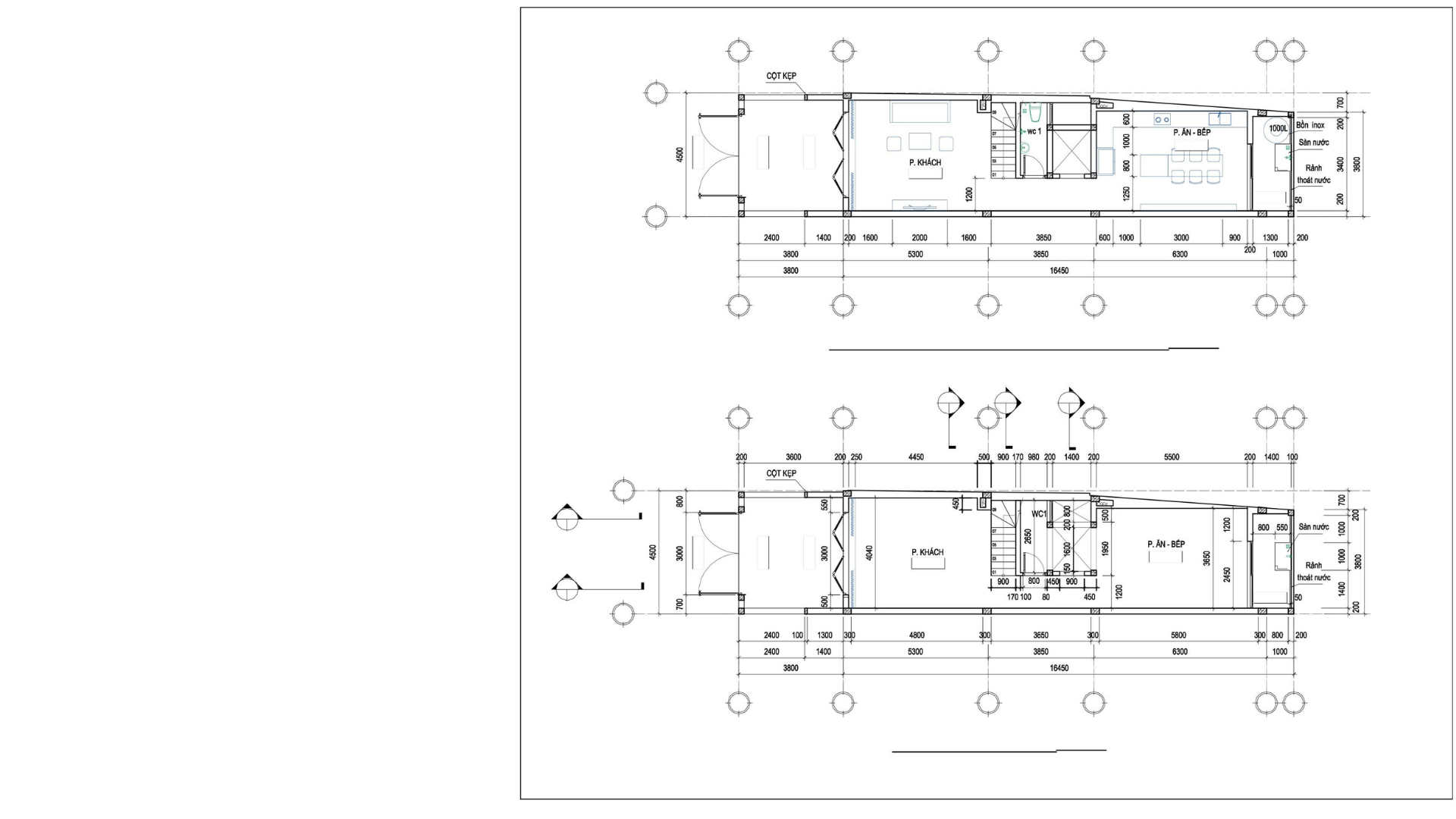
Nhà phố 75m2 – Dấu lặng phố thị nhẹ nhàng, mộc mạc nhưng vẫn giữ nét riêng biệt

Địa điểm: TP. Bảo Lộc, Tỉnh Lâm Đồng

Diện tích khuôn viên: 90 m2

Diện tích xây dựng: 75 m2

Tổng diện tích xây dựng: 260 m2

Thiết kế và xây dựng: 2025


 

PHỐI CẢNH NGOẠI THẤT

PHỐI CẢNH NỘI THẤT